Terug naar hoofdinhoud

Tilburg, te huur moderne en grote zelfstandige woon/bedrijfsruimte ca. 58m²

  • Kale huur: € 670 per maand
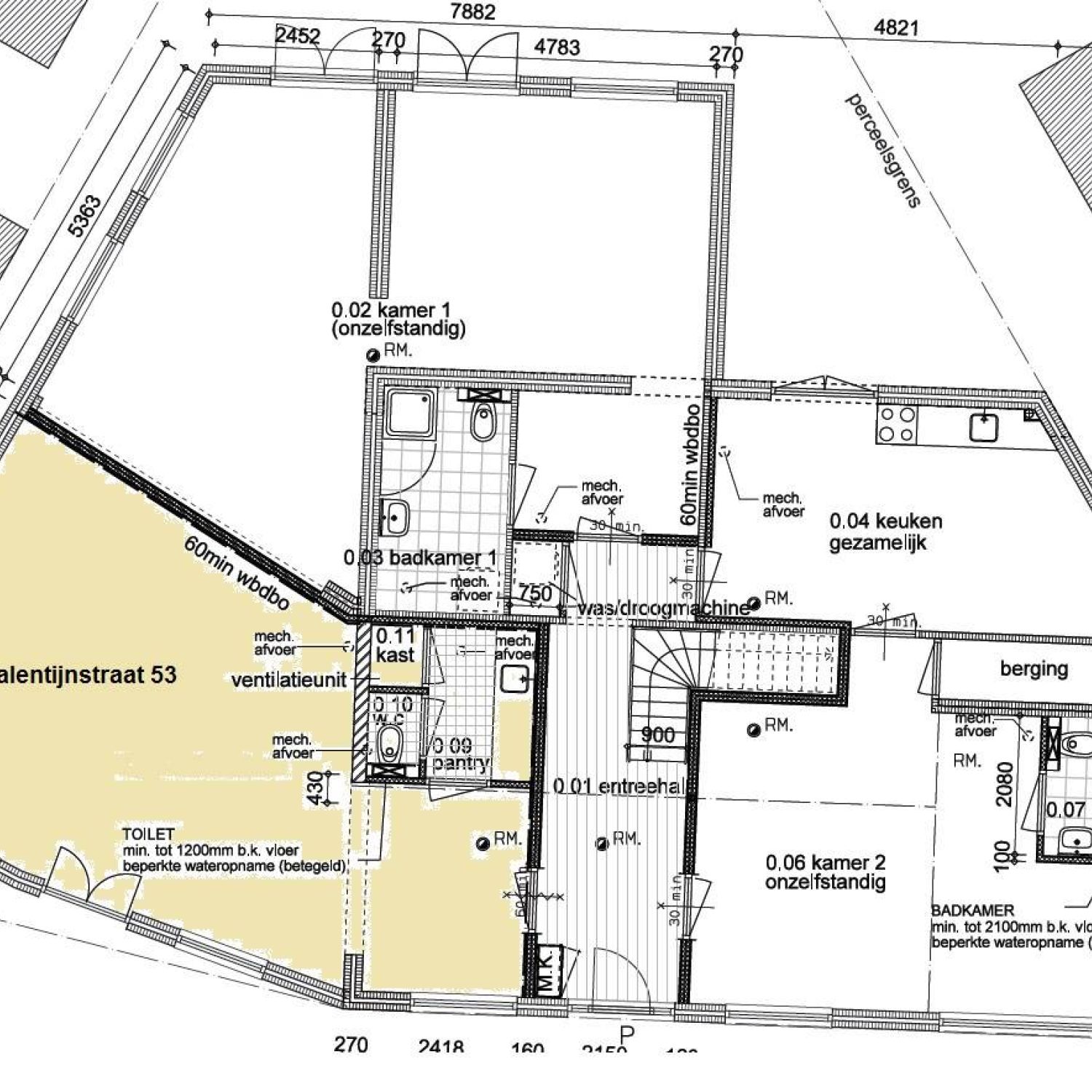
  • Adres: Valentijnstraat 53
  • Postcode: 5014KE
  • Plaats: Tilburg
  • Type pand: Huurwoning
  • Beschikbaarheid: 27 november 2022
  • Badkamers: 1
  • Toiletten: 1
  • Borg: 845

Algemeen: In een kleinschalig complex aan de Valentijnstraat 53 komt een woon/bedrijfsruimte beschikbaar per 1 januari 2023. Het complex gelegen op de hoek met de Van Meterenstraat in de wijk Rosmolenplein op ca. tien minuten wandelen van het centrum van Tilburg. De ontsluiting via Ringbaan Oost is erg gunstig. Vrij parkeren is mogelijk in de directe omgeving van het pand. Het groene Rosmolenplein ligt op een steenworp afstand. Alle dagelijkse voorzieningen zijn in de directe omgeving aanwezig. Het complex is in 2011 volledig gestript en omgebouwd van restaurant naar 5 volledig nieuwe zeer ruime studio’s.

Indeling: De centrale voordeur geeft toegang tot de gemeenschappelijke entree, waar in de meterkast, brandmeldinstallatie en wasruimte met wasmachine en wasdroger (inclusief) zijn opgenomen. Aan de centrale hal zijn de drie voordeuren gelegen van de begane grond appartementen en een trap leidt naar de eerste verdieping.

Woning: De eigen voordeur geeft toegang tot een voorportaal met ruimte voor een garderode en/of bureauhoek. Vanuit deze ruimte is de badkamer bereikbaar. Een open corridoor geeft toegang tot de centrale kantoor/leefruimte, met hierin opgenomen de open keuken.

Keuken: De moderne keuken is voorzien van voldoende boven en onderkasten, een vierpits gaskookplaat met rvs afzuigkap en een wastafel met mengkraan.

Woonkamer: De ruime kantoorkamer met openslaande tuindeuren aan de voorzijde is rechthoekig van vorm en daardoor erg gemakkelijk in te delen. 

Badkamer: De moderne geheel betegelde badkamer is voorzien van een ruime douche met thermostatische kraan, een wastafel, designradiator en hangtoilet.

Berging: Via de afgesloten achterom is de gemeenschappelijke tuin met berging voor het plaatsen van de fiets en kliko bereikbaar.

Bijzonderheden:
- Zelfstandige kantoorruimte met eigen huisnummer

- Kantooris volledig voorzien van een moderne laminaatvloer;
- Moderne badkamer;
- Hoge plafonds en alles is gestuct;
- Mechanische afzuiging;
- Lichte ruimte door de vele ramen;
- Oppervlakte ca. 58 m²;
- Wasmachine en wasdroger in complex;
- Gordijnen zijn ter overname.

- Huurprijs: € 670,- kale huur per maand (geen btw van toepassing);
- Gas, water, elektra, , tv, internet gebruik wasmachine en wasdroger € 175,- per maand;
- Aanvaarding: 1 januari 2023 of in overleg;
- Borg: € 845,-;

Voor meer informatie of voor het maken van een afspraak voor een bezichtiging kunt u contact opnemen met V/D Laar Vastgoed op nr. 040 – 842 79 92 of Dit e-mailadres wordt beveiligd tegen spambots. JavaScript dient ingeschakeld te zijn om het te bekijken.